사업분야
DIVISION

FLOATING CRANE 조선해양기자재의 명가 미래인더스트리(주)입니다.

Offshore FLOATING CRANE anchor winch hydraulic driven

닫기
Technical specification and weight

Anchor winch
Type
Anchor winch
Capacity
(Ton)
Wire Rope
dia.
(mm)
Nominal
Speed
(m/min)
Slack rope
Speed
(m/min)
Rated at Brake
Capacity
(Ton)
Weight
(kg)
HAW-50-1D 50 / 25 60 0 ~ 20 0 ~ 45 4th Layer 200 18,000
HAW-40-1D 40 / 20 50 5th Layer 138 16,500
HAW-30-1D 30 / 15 40 6st Layer 91.2 11,000
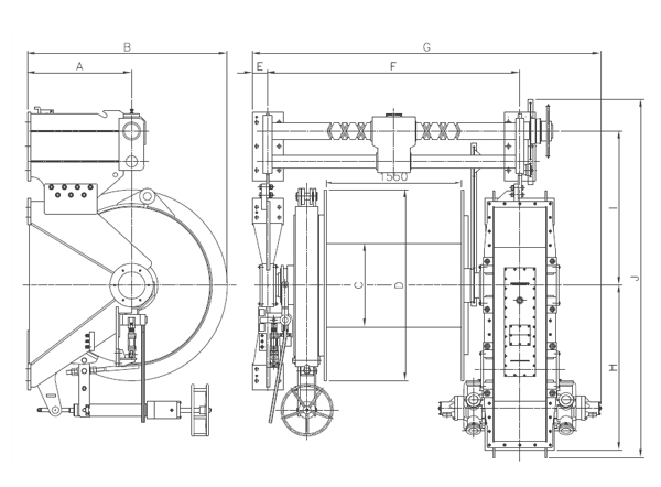
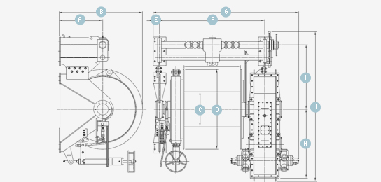
Demension
Windlass Type Dimension (mm)
A B C D E F G H I J
HAW-50-1D 1200 2300 960 2200 175 2900 4007 1900 1775 4123
HAW-40-1D 1100 2100 900 1950 175 2490 3570 1800 1725 3973
HAW-30-1D 1000 1950 640 1280 160 2000 3060 1700 1675 3820