



| Traction winch Type |
Traction winch Capacity (Ton) |
Wire Rope dia. (mm) |
Winding Speed (m/min) |
Warping end Capacity (Ton) |
Brake Capacity (Ton) |
Rated point (Layer) |
Weight (kg) |
|---|---|---|---|---|---|---|---|
| HTRW-10-2D | 10 | 40 | 15 | 5 | 18.5 | 1st | 4200 |
| HTRW-20-2D | 20 | 32 | 20 | 7 | 38 | 5th | 5500 |
| HTRW-30-2D | 30 | 32 | 20 | 30 | 53.36 | 5th | 6600 |
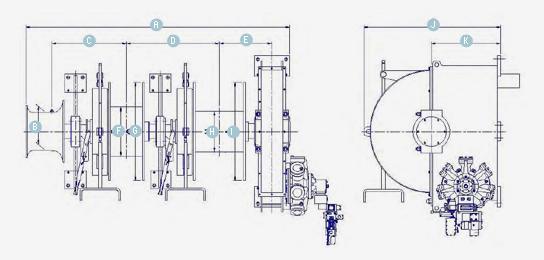
| Capstan Type |
Dimension (mm) | ||||||||||
|---|---|---|---|---|---|---|---|---|---|---|---|
| A | B | C | D | E | F | G | H | I | J | K | |
| HTRW-10-2D | 2575 | 450 | 513 | 880 | 630 | 475 | 1155 | 475 | 1155 | 1331 | 600 |
| HTRW-20-2D | 2760 | 320 | 640 | 940 | 630 | 500 | 1380 | 415 | 1380 | 1630 | 800 |
| HTRW-30-2D | 3442 | 500 | 973 | 1210 | 690 | 640 | 1280 | 540 | 1280 | 1780 | 900 |