



| Tug winch Type |
Tug winch Capacity (Ton) |
Wire Rope dia. (mm) |
Winding Speed (m/min) |
Warping end Capacity (Ton) |
Brake Capacity (Ton) |
Rated point (Layer) |
Weight (kg) |
|---|---|---|---|---|---|---|---|
| TTW-15/7.5-1D | 15 / 7.5 | 50 | 12 / 24 | 15 | 60 | 3rd | 4905 |
| TTW-15-1D-2W | 15 | 50 | 15 | 10 | 80 | 1st | 7150 |
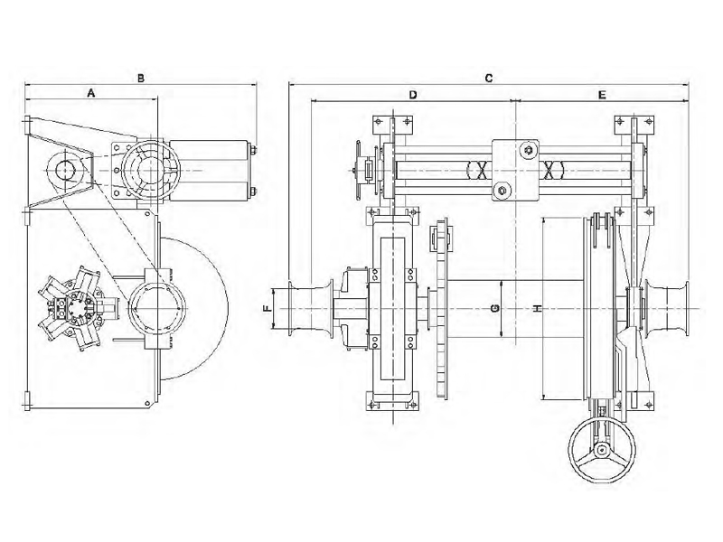
| Capstan Type |
Dimension (mm) | |||||||
|---|---|---|---|---|---|---|---|---|
| A | B | C | D | E | F | G | H | |
| TTW-15/7.5-1D | 900 | 1685 | 2681 | 1152 | 1354 | 320 | 400 | 1550 |
| TTW-15-1D-2W | 1050 | 1840 | 3170 | 1620 | 1375 | 320 | 450 | 1450 |